Passez des vacances agréables en Bretagne et louez un de nos mobilhomes
Nos 14 mobil homes Verona, Grand large et Tamaris spacieux et lumineux sont situés au 2e et 3e cercle. Ils sont 26 m².
Sur votre emplacement avec terrasse bois, mobilier de jardin et 2 transats vous pourrez profiter du soleil, prendre vos repas et vous détendre après vos journées de découverte.
Le minimum de séjour est de 3 nuits, sauf pour le forfait weekend en avant et arrière-saison.
Découvrez nos mobilhomes, confortablement équipées pour vos vacances réussies
Nos mobilhomes Grand Large 2 sont confortablement équipés
- Un salon convivial avec table à manger
- Une cuisine équipée, avec 4 plaques de gaz, réfrigérateur/congélateur, cafetière électrique
- 2 chambres avec armoires, avec un lit double de 140x190 ou de 2 lits de 80x190
- Une salle de douche confortable avec une douche, un lavabo et un wc séparé
- Des couettes (140x190) et oreillers sur tous les lits
- Vous aurez juste à amener vos draps, taies et drap housses
- Dans un seul de nos mobil homes nous acceptons des animaux
Sur demande un lit bébé, matelas à langer, chaise haute et bain sont à votre disposition.
Arrivée à partir de 16h00, départ avant 10h30.
Vous avez la liberté de choisir votre journée d’arrivée et de départ.
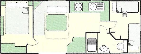
Nos mobilhomes Tamaris sont confortablement équipés
- Un salon convivial avec table à manger
- Une cuisine équipée, avec 4 plaques de gaz, réfrigérateur/congélateur, cafetière électrique
- 3 chambres avec armoires, avec un lit double de 140x190 et de 4 lits de 70x190 et 1 lit de 80x190
- Une salle de douche confortable avec une douche, un lavabo et un wc séparé
- Des couettes (140x190) et oreillers sur tous les lits
- Vous aurez juste à amener vos draps, taies et drap housses
- Dans un seul de nos mobil homes nous acceptons des animaux
Sur demande un lit bébé, matelas à langer, chaise haute et bain sont à votre disposition.
Arrivée à partir de 16h00, départ avant 10h30.
Vous avez la liberté de choisir votre journée d’arrivée et de départ.
Nos mobilhomes Verona sont confortablement équipés
- Un salon convivial avec grand canapé d’angle et table à manger
- Une cuisine équipée, avec 4 plaques de gaz, four/grill, réfrigérateur/congélateur, cafetière électrique
- Chauffage à gaz
- 2 chambres avec armoires, avec un lit double de 140x190 ou de 2 lits de 70x190 et 1 lit de 60x190 superposé
- Une salle de douche confortable avec une douche, un lavabo et un wc
- Des couettes (140x190) et oreillers sur tous les lits
- Vous aurez juste à amener vos draps, taies et drap housses
- Dans un seul de nos mobil homes nous acceptons des animaux
Sur demande un lit bébé, matelas à langer, chaise haute et bain sont à votre disposition.
Arrivée à partir de 16h00, départ avant 10h30.
Vous avez la liberté de choisir votre journée d’arrivée et de départ.
